Votre maison ossature bois clé en main à Gavrus 14210 n°4728584
265 000 €
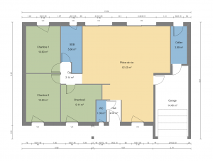
Découvrez cette offre d'une maison ossature bois clé en main à Gavrus dans le Calvados et réalisez votre projet de construction d'une maison bois de qualité et sur-mesure avec Ma Maison Bois dans le Calvados.
Faites construire cette maison bois sur-mesure et habitez une maison aux prestations de qualité, écologique, saine et fidèle à vos attentes à Gavrus dans le Calvados !
